レジディア笹塚2 更新日:2026-04-28
| 所在地 | 渋谷区笹塚2-25-6 | ||
|---|---|---|---|
| 交通 |
京王線 「代田橋」駅
徒歩7分 |
||
| 賃料 | 9.5万円 ~ 21.5万円 | ||
| 建物構造 | RC(鉄筋コンクリート) | 建物階数 | 地上-階 |
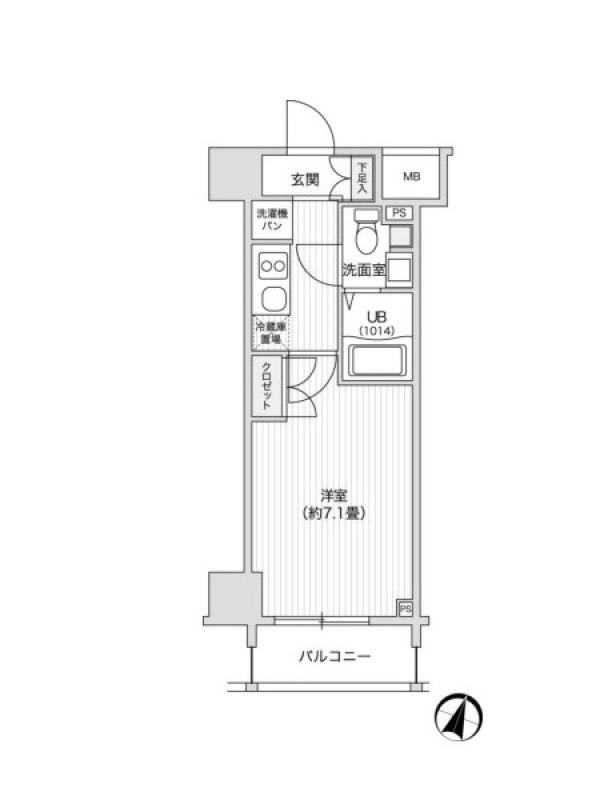
| 間取内容 | 1K 〜 1LDK | 面積 | 21.33m²~45.80m² |
| 総戸数 | 166 | 築年月 | 2011/1 |
レジディア笹塚2 へのお問い合せはエクセレントまで
物件画像
部屋間取り一覧
物件詳細
| 物件名 | レジディア笹塚2 |
|---|---|
| 物件概要 | 京王線「笹塚」駅 徒歩6分「レジディア笹塚2」の最新物件情報です。
(2026-04-28 更新) 賃料:9.5万円~21.5万円、 間取り: 1K 〜 1LDK 、 面積:21.33m²~45.80m²、 地上0階建ての建物です。 また築年数10年以内の物件になります。 当サイト「中央区の高級賃貸」は中央区の賃貸物件を集めた専門サイトです。 「レジディア笹塚2」は現在 1K 1LDK のお部屋がご契約可能です。 現在8室の空室があります。 空室情報は毎日更新しておりますが、最新の状況はお問い合わせください。 中央区の物件を探すなら新着情報がどこよりも早い「エクセレント」まで! |
| 所在地 | 渋谷区笹塚2-25-6 |
| 交通 |
京王線「笹塚」駅
徒歩6分 京王線「代田橋」駅 徒歩7分 |
| 状態 | 空室有り | ||
|---|---|---|---|
| 建物設備 | オートロック , 宅配ボックス , 駐車場 , バイク置場 , 大通り沿い , インターネット接続可 , 管理人有り , 駐輪場あり , 敷地内ゴミ置場 , 中高層マンション , CATV , CS , BS | ||
| URL | 「レジディア笹塚2」 | ||
| 最新情報はこちら |
渋谷区の高級賃貸(区) 京王線「笹塚駅の賃貸物件」 |
||
部屋情報
| 部屋 | 間取 | 面積 | 家賃 | 管理費 | 敷金 | 礼金 | 詳細 |
|---|---|---|---|---|---|---|---|
| 105 | 1K | 23.04m2 | 126,000円 | 15,000円 | 1.0ヶ月 | 0.0ヶ月 | 詳細はこちら |
| 216 | 1K | 23.04m2 | 130,000円 | 15,000円 | 0.0ヶ月 | 0.0ヶ月 | 詳細はこちら |
| 213 | 1LDK | 41.67m2 | 195,000円 | 20,000円 | 1.0ヶ月 | 0.0ヶ月 | 詳細はこちら |
| 410 | 1LDK | 40.35m2 | 212,000円 | 20,000円 | 1.0ヶ月 | 1.0ヶ月 | 詳細はこちら |
| 810 | 1K | 24.11m2 | 136,000円 | 15,000円 | 0.0ヶ月 | 0.0ヶ月 | 詳細はこちら |
| 908 | 1LDK | 41.3m2 | 215,000円 | 20,000円 | 1.0ヶ月 | 1.0ヶ月 | 詳細はこちら |
| 1003 | 1K | 22.2m2 | 130,000円 | 15,000円 | 0.0ヶ月 | 0.0ヶ月 | 詳細はこちら |
| 1004 | 1K | 22.2m2 | 127,000円 | 15,000円 | 0.0ヶ月 | 0.0ヶ月 | 詳細はこちら |
物件マップ
Loading...
※物件掲載内容と現況に相違がある場合は現況を優先と致します。
このページについて
このページは「レジディア笹塚2」の詳細情報です。
※分譲賃貸マンションは、貸主様や代理不動産業者のご希望で、それぞれのお部屋の賃料や管理費、敷金、礼金などの契約条件が変わる場合がございます。
また、各部屋のオーナー様次第で、設備・仕様・内装などが変更されている場合もございます。
※駐輪場・バイク置場・駐車場の正確な空き状況についてはお問合せをお願い致します。
※礼金ゼロ、フリーレント、ペット飼育可、家具付きなどのお部屋の詳細は、メールやお電話にて事前にスタッフまでご確認ください。
※ペット飼育及び事務所・SOHO可については物件の管理規約で可能になっている場合でも、各部屋の所有者様次第で禁止となっている場合がございます。
※駐輪場・バイク置場・駐車場の正確な空き状況についてはお問合せをお願い致します。
※礼金ゼロ、フリーレント、ペット飼育可、家具付きなどのお部屋の詳細は、メールやお電話にて事前にスタッフまでご確認ください。
※ペット飼育及び事務所・SOHO可については物件の管理規約で可能になっている場合でも、各部屋の所有者様次第で禁止となっている場合がございます。
新着情報
-
UP
アイフラット代々木上原
144,000円 ~ 430,000円
1K - 2LDK
東京メトロ千代田線 代々木上原駅 -
UP
レ・ジェイドクロス千代田神保町
249,000円 ~ 395,000円
1LDK - 2LDK
東京メトロ半蔵門線 神保町駅 -
UP
ラヴィラント御茶ノ水
115,000円 ~ 235,000円
1K - 1SLDK
東京メトロ半蔵門線 神保町駅 -
UP
グランスイート千代田麹町
190,000円 ~ 500,000円
1LDK - 2SLDK
JR中央・総武線 四ッ谷駅
その他の中央区の物件
-
UP
オーベル月島リバージュグラン
121,500円 ~ 248,000円
1DK - 2SLDK
都営大江戸線 月島駅 -
UP
カルナ築地
124,000円 ~ 178,000円
1LDK
東京メトロ日比谷線 築地駅 -
UP
グランパセオ日本橋箱崎町
120,000円 ~ 280,000円
1DK - 2LDK
東京メトロ半蔵門線 水天宮前駅 -
UP
ブロードシティ東京
90,000円 ~ 270,000円
1R - 2LDK
東京メトロ半蔵門線 水天宮前駅
